Welcome To

48 Thirteenth Street, Etobicoke (Toronto), Ontario, M8V 3H4


Scroll

3D Virtual Tour


Property Details


$949,000.00

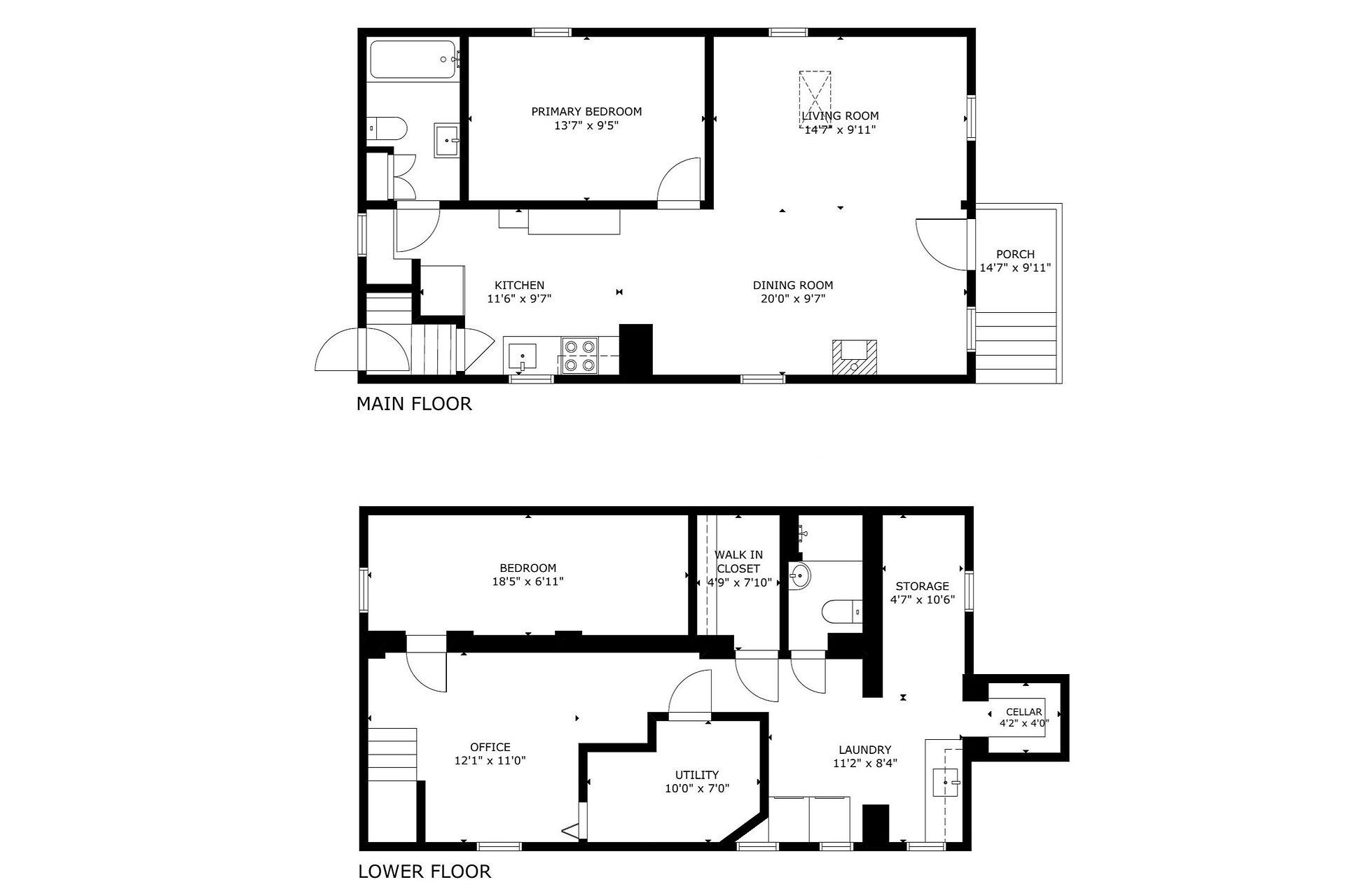
Location! Location! Location! Now you too can enjoy Life-By-The-Lake in this delightful move-in-ready, updated bungalow on a highly-sought-after street in the heart of New Toronto! Direct access into Colonel Sam Smith Waterfront Park! Steps to the Lake, the Waterfront Trail, schools, Humber College & TTC! Quick commute downtown! Main floor totally renovated! Gorgeous reno'd kitch, 4-pc bathrm & inviting bdrm! Open-concept living/dining rooms enjoy 13-foot-high ceiling, exposed beams & sky lights! Spacious, finished bsmnt w separate entrance, kitchen, 2nd bdrm, 3-pc bath, home office & income-earning possibilities!!! Close to all kinds of recreational amenities plus grocery stores, delis, coffee shops & eateries!!!

  •  Type Residential
  •  1+1 Beds
  •  2 Baths
  •  Bungalow Style
  •  1520 ft Sq. Ft.
  •  26 x 110 Feet Lot Size

Property Features


  • Hear the waves! Feel the breezes!!
  • Steps to the Lake & beaches!
  • Steps to the Waterfront Trail!
  • Backs onto a massive Lakeside Park!
  • Backyard has direct access to park!
  • A stone's throw to Humber College!
  • Spectacular sunsets from the patio!
  • Several good schools nearby!
  • Steps to the local swimming pool!
  • GO Train/bus/streetcar are nearby!

Photo Gallery


View Full Gallery

Google Views

View

Presented By

Laura, Angela & Paul Giraudy
Sales Representative

thegiraudys@gmail.com

www.giraudy.com

416-432-2440

View all my tours

Royal LePage Real Estate Services Ltd.
Brokerage

3031 Bloor Street W., Toronto Ontario M8X 1C5

416-236-1871

Get In Touch